Локация

Жилищен комплекс "Диана"

Жилищен комплекс "Диана" е едно бутиково и елегантно място за живеене.

Намира се в един от най-предпочитаните квартали на София – Дианабад. Състои от пет жилищни тела, строителството на които се осъществява на два етапа. Изградени са първите две жилищни тела „Г" и „Д" – от м. юни 2016 имат Разрешение за ползване. Останалите три тела „А", „Б" и „В" ще бъдат готови до м. юли 2017г.

Всички площи в комплекса са проектирани рационално, разпределенията са функционални и в съответствие със съвременните изисквания. Обособени са едностайни, двустайни и тристайни жилища. Предвидена е уникалната архитектурна възможност отделни съседни жилища да бъдат лесно обединени с цел образуване на жилище с по-просторни или повече на брой помещения.

Комплекс "Диана" се отличава с дизайнерска визия и елегантни архитектурни решения. По фасадите са използвани едри декоративни елементи и структурно остъкляване. За повече динамика и стил са използвани лентовидни парапети. Части от фасадата се предвижда да бъдат обработени с растерни облицовки, релефни мазилки и обшивки от дървени летви. Допълнителни ажурени слънцезащитни елементи допринасят за обогатяване, разчупване и отличаване на визията.

Общите части на всички тела в комплекса ще бъдат луксозно завършени. Незастроеното дворно пространство, което е разположено в югоизточната част на парцела, ще бъде озеленено, благоустроено и организирано като място за рекреация и отдих. Предвидено е оформяне на обширна градина с детска площадка, алейна мрежа и градинско обзавеждане. За повече богатство в ландшафтното оформление са предвидени архитектурни елементи – колонади, рамки, сфери и др.

Степента на завършеност

Стени

Външни – селикатна мазилка, обшивка с декоративни елементи, ажурeни слънцезащитни елементи. Вътрешни – ръчно и машинно полагане на мазилка и шпакловка във всички стаи, предверия и коридори. Санитарни помещения – ръчно и машинно полагане на мазилка и подова замазка.

Тавани

Машинно полагане на мазилка и гипсова шпакловка.

Подове

Гланцирана циментова замазка.

Тераси

С хидро и термо-изолация, циментова замазка и гранитогрес; парапети от ковано желязо, монтирани влагоустойчиви осветителни тела.

Водопровод

Вертикални щрангове – полипропилен, други тръби – полиетилен – шлаух.

Канализация

PVC

Отопление

ТЕЦ – абонатна станция, индивидуални топломери, монтирани радиатори.

Електроинсталация

В стените и подовата замазка, апартаментно табло, розетки без ключове и контакти, изводи за телефон, интернет и кабелна телевизия.

Външна дограма

Немска 5 камерна дограма „Алупласт".

Входна врата

Блиндирана входна врата

Звънчева инсталация

С табло и звънци, монтирана с оборудване за ползване, съгласно проект.

Окабеляване

СОТ окабеляване, интернет, кабелна ТВ

Общи части

Стълбища и площадки, коридори, олуци и водосточни тръби, общи части на сградата, завършени на 100 % по проект.

Гараж

Под – шлайфан бетон, стени и тавани – машинно полагане на мазилка и шпакловка

Мазета

Под – шлайфан бетон, стени и тавани – машинно полагане на мазилка, врата – плътна, метална

Разпределения

Магазин
Жилищен комплекс Диана - Фасада

Фасада

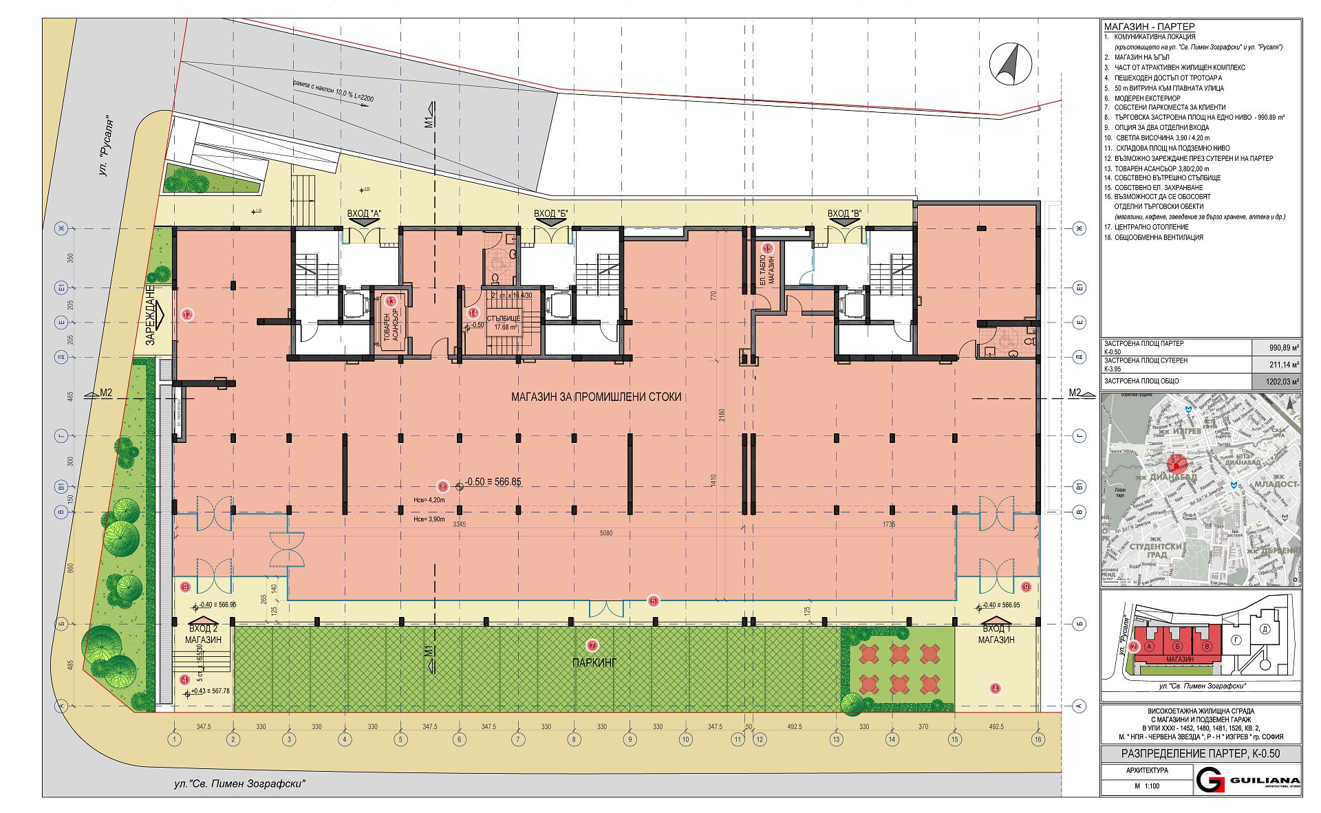
Жилищен комплекс Диана - Търговска площ - партер

Търговска площ - партер

Жилищен комплекс Диана - Складова площ - сутерен

Складова площ - сутерен

Жилищен комплекс Диана - Вертикални разрези

Вертикални разрези

Тяло "А"
Жилищен комплекс Диана - Общ сутерен А,Б и В

Общ сутерен А,Б и В

Жилищен комплекс Диана - ет. 2

ет. 2

Жилищен комплекс Диана - ет. 3

ет. 3

Жилищен комплекс Диана - ет. 4

ет. 4

Жилищен комплекс Диана - ет. 5

ет. 5

Жилищен комплекс Диана - ет. 6

ет. 6

Жилищен комплекс Диана - ет. 7

ет. 7

Жилищен комплекс Диана - ет. 8

ет. 8

Жилищен комплекс Диана - ет. 9

ет. 9

Тяло "Б"
Жилищен комплекс Диана - Общ сутерен А,Б и В

Общ сутерен А,Б и В

Жилищен комплекс Диана - ет. 2

ет. 2

Жилищен комплекс Диана - ет. 3

ет. 3

Жилищен комплекс Диана - ет. 4

ет. 4

Жилищен комплекс Диана - ет. 5

ет. 5

Жилищен комплекс Диана - ет. 6

ет. 6

Жилищен комплекс Диана - ет. 7

ет. 7

Жилищен комплекс Диана - ет. 8

ет. 8

Жилищен комплекс Диана - ет. 9

ет. 9

Тяло "В"
Жилищен комплекс Диана - Общ сутерен А,Б и В

Общ сутерен А,Б и В

Жилищен комплекс Диана - ет. 2

ет. 2

Жилищен комплекс Диана - ет. 3

ет. 3

Жилищен комплекс Диана - ет. 4

ет. 4

Жилищен комплекс Диана - ет. 5

ет. 5

Жилищен комплекс Диана - ет. 6

ет. 6

Жилищен комплекс Диана - ет. 7

ет. 7

Жилищен комплекс Диана - ет. 8

ет. 8

Жилищен комплекс Диана - ет. 9

ет. 9

Тяло "Г"
Жилищен комплекс Диана - Общ сутерен Г и Д

Общ сутерен Г и Д

Жилищен комплекс Диана - ет. 1

ет. 1

Жилищен комплекс Диана - ет. 2

ет. 2

Жилищен комплекс Диана - ет. 3

ет. 3

Жилищен комплекс Диана - ет. 4

ет. 4

Жилищен комплекс Диана - ет. 5

ет. 5

Жилищен комплекс Диана - ет. 6

ет. 6

Жилищен комплекс Диана - ет. 7

ет. 7

Жилищен комплекс Диана - ет. 8

ет. 8

Жилищен комплекс Диана - ет. 9

ет. 9

Тяло "Д"
Жилищен комплекс Диана - Общ сутерен Г и Д

Общ сутерен Г и Д

Жилищен комплекс Диана - ет. 1

ет. 1

Жилищен комплекс Диана - ет. 2

ет. 2

Жилищен комплекс Диана - ет. 3

ет. 3

Жилищен комплекс Диана - ет. 4

ет. 4

Жилищен комплекс Диана - ет. 5

ет. 5

Жилищен комплекс Диана - ет. 6

ет. 6

Жилищен комплекс Диана - ет. 7

ет. 7

Жилищен комплекс Диана - ет. 8

ет. 8

Жилищен комплекс Диана - ет. 9

ет. 9